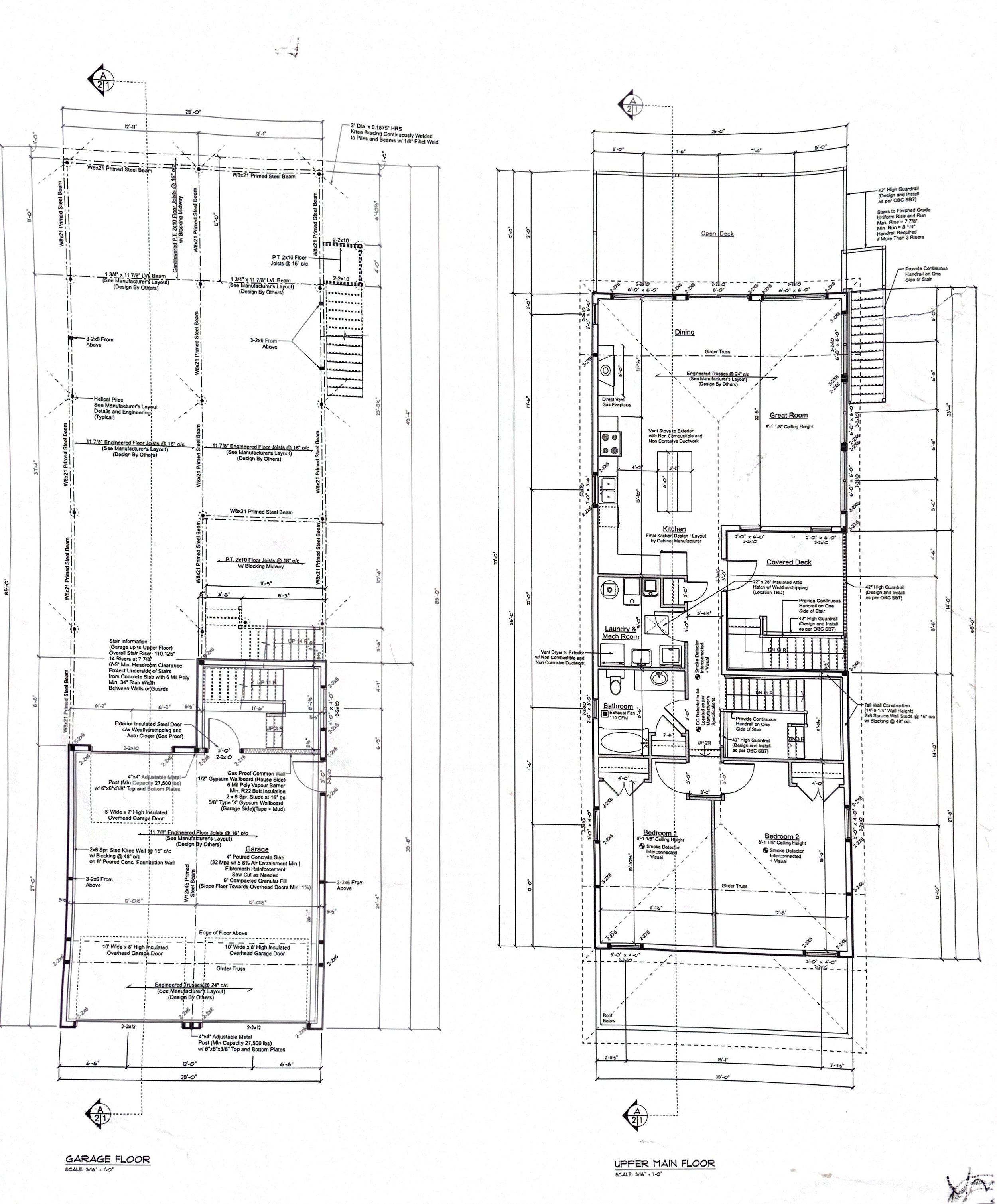
New Home Build Vantuyckom Project

Port Bruce, Ontario

Previous
Previous

New Home Construction Vanderwyst Project

Next
Next

Exterior Remodel Underwood Project